Дизайнерский камин Rocal City
4569d45ba599
Доставка в Ростов на Дону
Удобство оплаты
Почему звонить в Очаг уже сейчас?
- Единая цена по всей России
- Бесплатная доставка
- Понимаем любой бюджет
- Считаем ВСЕ варианты
- Инструкции и видео для Монтажа
- Доступно, Оперативно, Профессионально
- Более 2 000 монтажей за 17 лет
Примеры работ #Степан_Знает
Описание
Характеристики
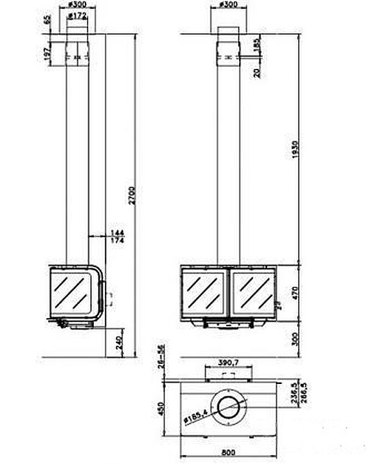
Размеры
Диаметр дымохода:
180 мм
Общая ширина:
800 мм
Общая глубина:
450 мм
Общая высота:
2759 мм
Общий вес:
152 кг
Производительность
Мощность:
14,1 кВт
КПД:
85,1%
Площадь отопления:
150 м²
Объем отопления:
375 м³
Использование для отопления:












