Каминная топка Astov ПТ 9074
2dd1b687dbdb
Доставка в Ростов на Дону
Удобство оплаты
Почему звонить в Очаг уже сейчас?
- Единая цена по всей России
- Бесплатная доставка
- Понимаем любой бюджет
- Считаем ВСЕ варианты
- Инструкции и видео для Монтажа
- Доступно, Оперативно, Профессионально
- Более 2 000 монтажей за 17 лет
Примеры работ #Степан_Знает
Видео галерея
Описание
Характеристики
Общие
Производитель:
Страна-производитель:
Россия
Остекление:
Материал корпуса:
Материал топки:
- Шамот
Конструкция топки:
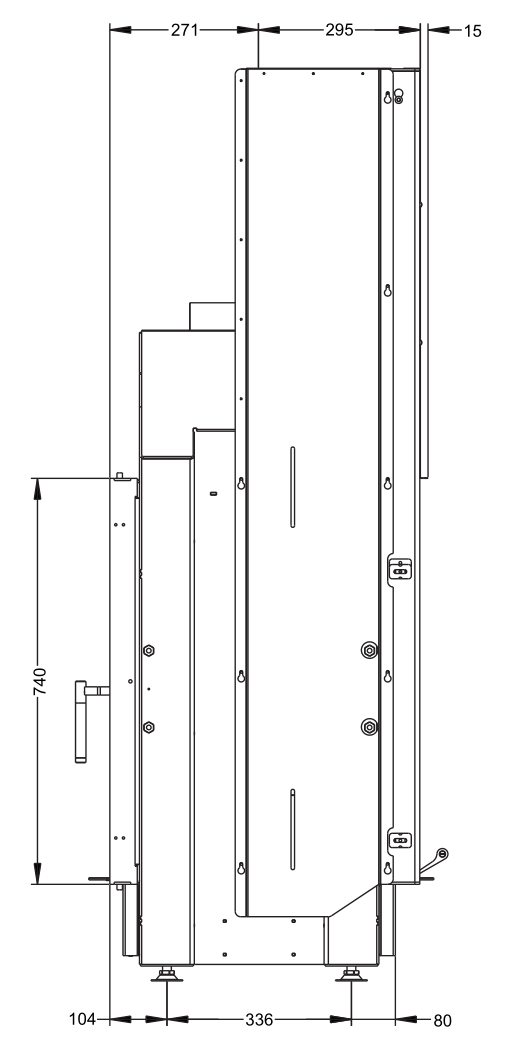
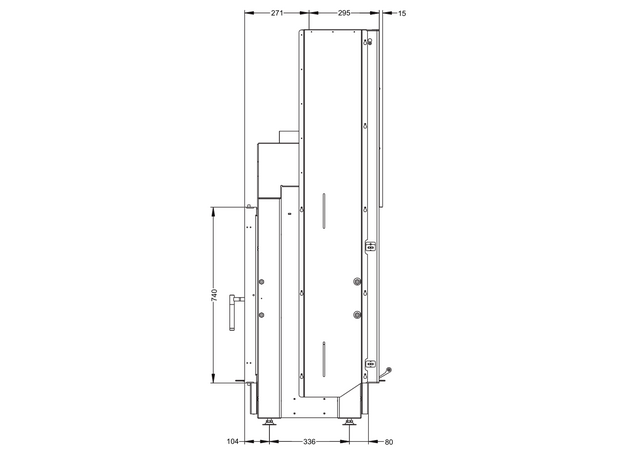
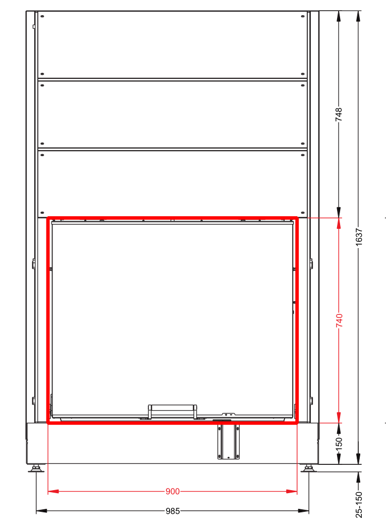
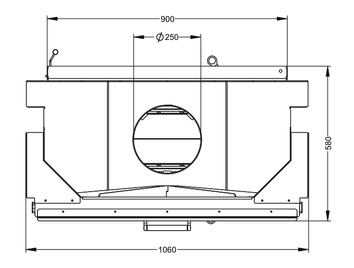
Размеры
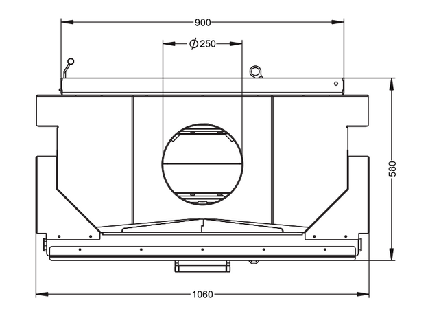
Диаметр дымохода:
250 мм
Общая ширина:
1060 мм
Общая глубина:
580 мм
Общая высота:
1662 мм
Общий вес:
385-430 кг
Высота рамки:
740 мм
Ширина рамки:
900 мм
Производительность
Мощность:
9 кВт
КПД:
80%
Площадь отопления:
90 м²
Объем отопления:
225 м³
Использование для отопления:












