Каминная топка Romotop Heat R/L 2G S 70.44.33.23
7c28f1adcbd4
Доставка в Ростов на Дону
Удобство оплаты
Почему звонить в Очаг уже сейчас?
- Единая цена по всей России
- Бесплатная доставка
- Понимаем любой бюджет
- Считаем ВСЕ варианты
- Инструкции и видео для Монтажа
- Доступно, Оперативно, Профессионально
- Более 2 000 монтажей за 17 лет
Примеры работ #Степан_Знает
Видео галерея
Описание
Характеристики
Общие
Производитель:
Страна-производитель:
Чехия
Остекление:
Материал корпуса:
Материал топки:
- Вермикулит
Конструкция топки:
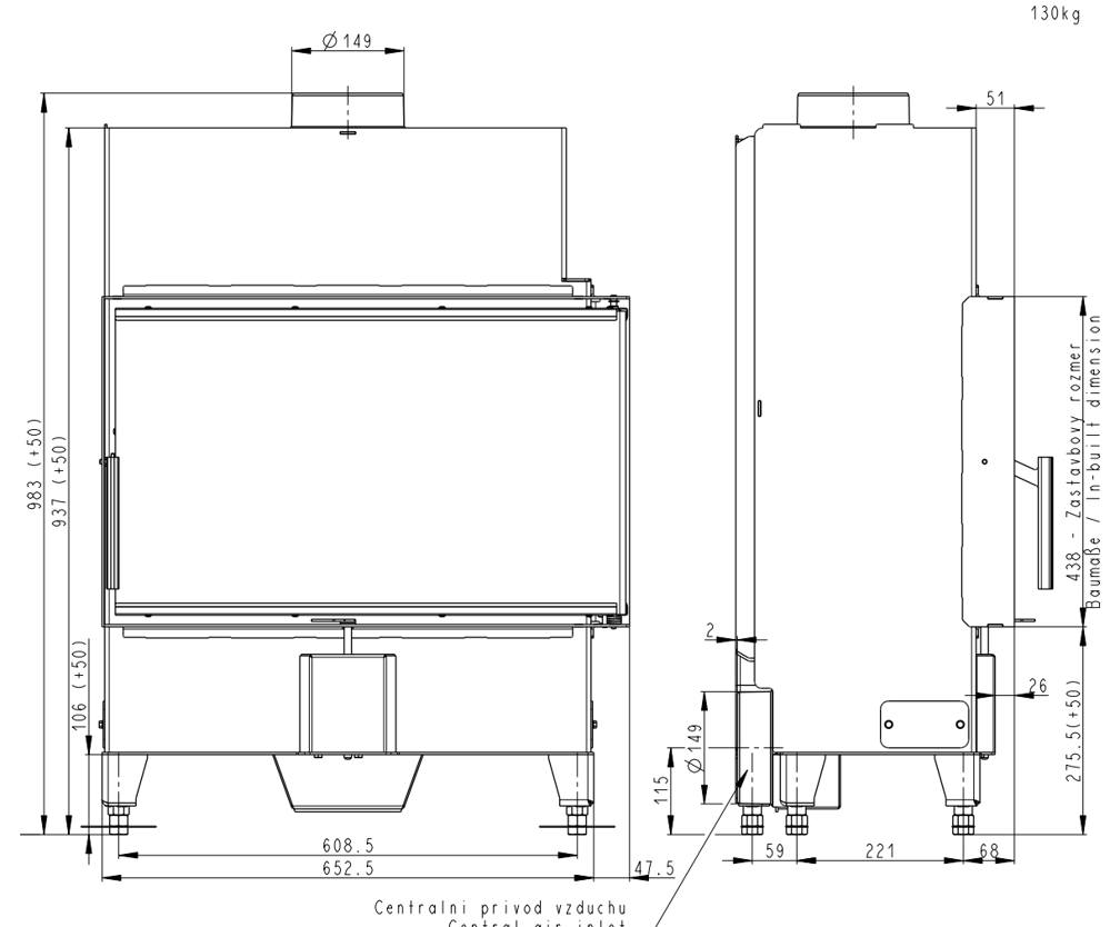
Размеры
Диаметр дымохода:
150 мм
Общая ширина:
700 мм
Общая глубина:
375 мм
Общая высота:
983 мм
Общий вес:
130 кг
Высота рамки:
407 мм
Ширина рамки:
677 мм
Производительность
Мощность:
6,3 кВт
КПД:
86,6%
Площадь отопления:
70 м²
Объем отопления:
175 м³
Использование для отопления:












