Каминная топка Romotop Kv 2G 66.50.01
d1e86ee22014
Доставка в Ростов на Дону
Удобство оплаты
Почему звонить в Очаг уже сейчас?
- Единая цена по всей России
- Бесплатная доставка
- Понимаем любой бюджет
- Считаем ВСЕ варианты
- Инструкции и видео для Монтажа
- Доступно, Оперативно, Профессионально
- Более 2 000 монтажей за 17 лет
Примеры работ #Степан_Знает
Видео галерея
Описание
Характеристики
Общие
Производитель:
Страна-производитель:
Чехия
Остекление:
Материал корпуса:
Материал топки:
- Вермикулит
Конструкция топки:
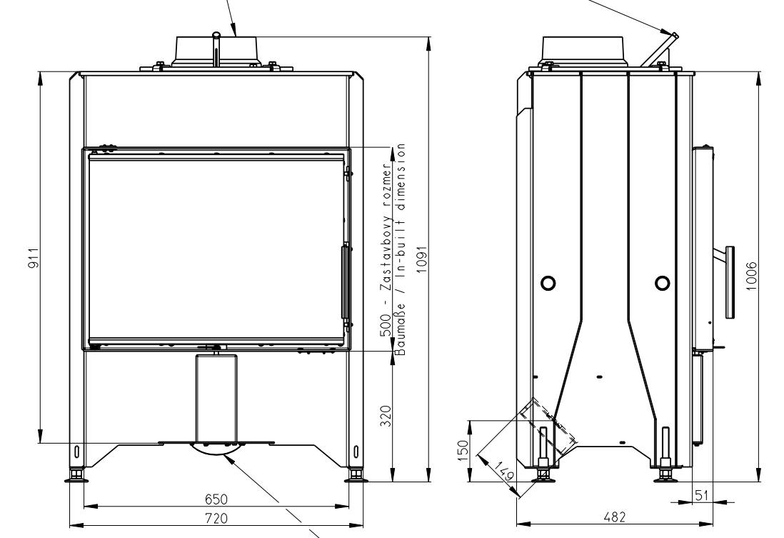
Размеры
Диаметр дымохода:
200 мм
Общая ширина:
720 мм
Общая глубина:
482 мм
Общая высота:
1003 мм
Общий вес:
205 кг
Высота рамки:
467 мм
Ширина рамки:
624 мм
Производительность
Мощность:
7 кВт
КПД:
85%
Площадь отопления:
70 м²
Объем отопления:
175 м³
Использование для отопления:












