Каминная топка Schmid Ekko U 55(67)51 h
3bb49692ee59
Доставка в Ростов на Дону
Удобство оплаты
Почему звонить в Очаг уже сейчас?
- Единая цена по всей России
- Бесплатная доставка
- Понимаем любой бюджет
- Считаем ВСЕ варианты
- Инструкции и видео для Монтажа
- Доступно, Оперативно, Профессионально
- Более 2 000 монтажей за 17 лет
Примеры работ #Степан_Знает
Видео галерея
Описание
Характеристики
Общие
Производитель:
Страна-производитель:
Германия
Остекление:
Материал корпуса:
Материал топки:
- Шамот
Конструкция топки:
Размеры
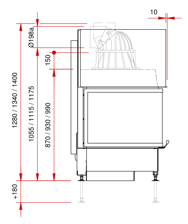
Диаметр дымохода:
200 мм
Общая ширина:
545 мм
Общая глубина:
717 мм
Общая высота:
1340 мм
Общий вес:
250 кг
Высота рамки:
510 мм
Ширина рамки:
550 мм
Производительность
Мощность:
9 кВт
КПД:
78%
Площадь отопления:
90 м²
Объем отопления:
225 м³
Использование для отопления:












